Mr. Mario from Sardegna, Italy
Time: 2019
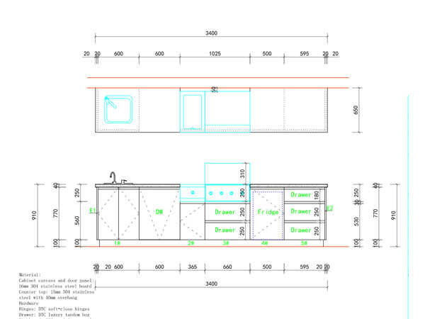
Products: Outdoor stainless steel kitchen cabinet, outdoor kitchen cabinets kits
Technical Support: CAD Drawing
Features: 304 stainless steel carcass
304 stainless steel door panels
with Grill, side burner, sink, taps, fridge and dishwasher

Mr. Mario lives in Sardinia, Italy with his family. He would like to add one outdoor kitchen for his nice house, besides the swim pool.



He found Vermont company and sales Charls provided very good service. Designer RB did the CAD drawings for client.

Client placed the order soon, Vermont company arranged to produce. After finishing producing, designer did the inspection.





After sea shipping, client received the products. Finish installation, clients gave Vermont very nice feedback.



Mario and his family were all very happy with Vermont’s products.
